Zur Übersicht
Wohnen

Haus K in Ilvesheim – Wohnen in einer Trafostation

| Wohnen

Für die Bauherrn entwickelten Naumer Architekten den Um- und Erweiterungsbau einer Umspannungsstation im Mahrgrund in Ilvesheim bis zur Ausführungsreife.

 

Der Trafostationsturm auf dem Grundstück sollte so erweitert werden, dass ein komplettes Wohnhaus auf drei Ebenen mit integrierter Garage und interessanten Sichtbezügen nach Innen und Außen entsteht. Im Trafoturm selbst werden Gästezimmer, Schlafzimmer und Küche untergebracht.

Der Turm, mit markantem Wiedererkennungswert, sollte optisch erhalten bleiben. So entwickelt sich ein Ensemble aus einer gläsernen Erschließungsfuge, einem aufgeständerten und einem angestellten Kubus, die sich dem Turm annähern, ohne ihn zu umbauen. Der graue Putz im Kontrast zur glänzenden, kleinteiligen, braunen Keramikfassade unterstreicht das ausbalancierte Spiel aus Form, Farbe und Proportion.

Abbildung: Haus K in Ilvesheim – Wohnen in einer Trafostation
Abbildung: Haus K in Ilvesheim – Wohnen in einer Trafostation
Der ursprüngliche Umspannstationsturm
Abbildung: Haus K in Ilvesheim – Wohnen in einer Trafostation
Ansichtszeichnung Ost des Bauantrages
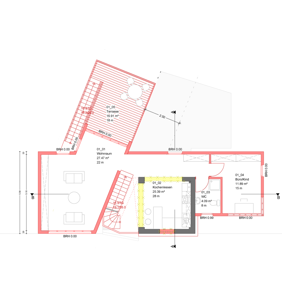
Abbildung: Haus K in Ilvesheim – Wohnen in einer Trafostation
Grundriss des 1. Obergeschosses mit Wohnraum, Terrasse, Küche und Zimmer für Kind oder Büro
Abbildung: Haus K in Ilvesheim – Wohnen in einer Trafostation
Visualisierung des geplanten Wohnensembles
Abbildung: Haus K in Ilvesheim – Wohnen in einer Trafostation
Abbildung: Haus K in Ilvesheim – Wohnen in einer Trafostation
Abbildung: Haus K in Ilvesheim – Wohnen in einer Trafostation
Standort Mahrgrund, Ilvesheim
Auftraggeber Eheleute K.
Baujahr geplant 2017, nicht realisiert
Leistungsphase Grundlagenermittlung, Vorplanung, Entwurfsplanung, Genehmigungsplanung, Ausführungsplanung, Vorbereitung der Vergabe, Mitwirkung bei der Vergabe, Visualisierung