Zur Übersicht
Wohnen

Haus Z in Mannheim-Käfertal - Ein modernes Wohnhaus mit anspruchsvoller Statik

| Wohnen

Individuelle Architektur in zweiter Reihe – geplant für höchste Ansprüche Auf einem anspruchsvollen Grundstück in zweiter Reihe entstand ein individuelles Architektenhaus mit moderner Gestaltung und hochwertiger Ausführung. Der Entwurf stammt von unserer Architektin Parez Qader, die Umsetzung verantwortet Beatrice Schenk gemeinsam mit Herrn Naumer in der Bauleitung.

Offene Grundrisse und vielseitige Nutzung

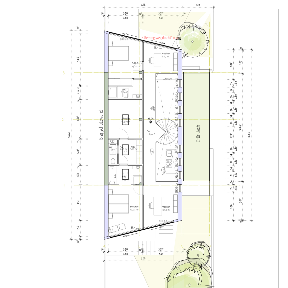
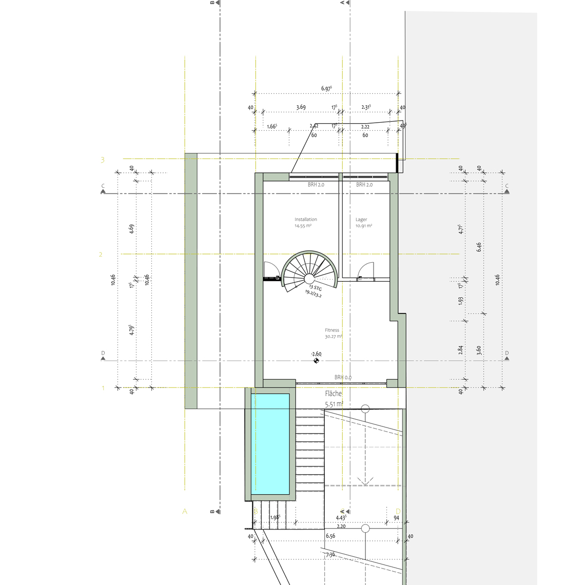
Auf zwei Ebenen bietet das Wohnhaus großzügige Räume mit fließenden Übergängen. Neben dem Wohn- und Essbereich umfasst das Haus ein Fotostudio, einen Gästebereich sowie einen eigenen Fitnessraum – perfekt abgestimmt auf die Bedürfnisse der Bauherren.

Stahlbau trifft Beton – eine statische Herausforderung

Die untere Ebene fungiert als massiver, monolithischer Sockel, der ein bis zu fünf Meter auskragendes Obergeschoss trägt. Der obere Baukörper besteht aus einem leichten, metallverkleideten Stahlbau und scheint nahezu zu schweben. Die statische Planung übernahm frühzeitig das Ingenieurbüro Herzog + Partner.

Licht, Reflexion und Rückzug

Ursprünglich war ein asiatisch inspirierter Garten mit Tiefhof, Wasserbecken und Pool vorgesehen. Auch wenn diese Elemente später entfallen sind, bleibt das Thema Lichtgestaltung prägend – umgesetzt in Zusammenarbeit mit einer erfahrenen Lichtplanerin.

Komplexe Baulogistik in zweiter Reihe

Die Lage in zweiter Reihe mit Zugang über Nachbargrundstücke erforderte eine detailliert koordinierte Baulogistik und stellt besonders hohe Anforderungen an das Baustellenmanagement. Der Baustart erfolgte 2024, die Fertigstellung ist für 2025 geplant.

Visualisierung von Parez Qader (2021) © Naumer Architekten
Visualisierung von Parez Qader (2021) © Naumer Architekten
Ansicht Nord
Grundriss Untergeschoss der Baugenehmigungsplanung
Grundriss Obergeschoss der Baugenehmigungsplanung
Stahlbau des Obergeschosses
Große Betonwendeltreppe im Rohbau
Standort Mannheim-Käfertal
Auftraggeber Eheleute Zhou
Baujahr 2024-2025
Leistungsphasen Grundlagenermittlung, Vorplanung, Entwurfsplanung, Genehmigungsplanung, Besondere Leistung: 3D-Visualisierung