Zur Übersicht
Wohnen

Umnutzung einer Tierarztpraxis in Wohnraum - Mannheim-Innenstadt

| Wohnen Gewerbe

In einem Mehrfamilienhaus in den Mannheimer Quadraten nah dem Mannheimer Nationaltheater am Friedrichsring befand sich eine Tierarztpraxis im Erdgeschoss, welche der Eigentümer zu Wohnungen umbauen möchte.

Das historische Gebäude wurde im Zweiten Weltkrieg durch Sprengbomben bis zum Gurtgesims Oberkante 1. Obergeschoss glatt abgeschnitten. In dem vorderen Haus zum Friedrichring wohnte und lebte der Architekt Hans Bender, der sich um den Erhalt und die Sanierung des Gebäudes im Jahre 1947 mit Schreiben an die Stadt Mannheim bemühte. In den 50er Jahren wurden statische Prüfberichte erstellt und das Haus Stück für Stück wieder aufgebaut.

2022 wendeten sich die Hauseigentümer an Naumer Architekten. Die im Erdgeschoss und Zwischengeschoss befindliche Tierarztpraxis sollte in zwei Wohneinheiten umgebaut werden.

Ansichtszeichnung Ost
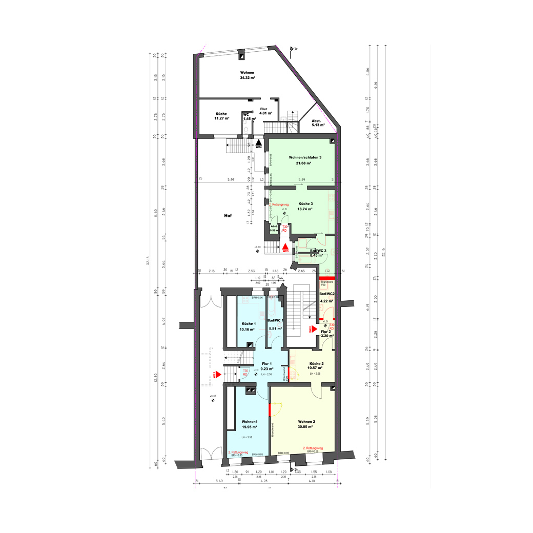
Erdgeschossgrundriss zur Umbauplanung
2022 Bestand Tierarztpraxis
Das historische Vorder- und Hinterhaus in Nationaltheaternähe
Standort Mannheim Innenstadt, U6, 11
Auftraggeber Familie Jäger
Baujahr 2022-2023 Planung, 2024 Umsetzung
Leistungsphasen Grundlagenermittlung, Vorplanung, Entwurfsplanung, Genehmigungsplanung, Ausführungsplanung, Vorbereitung der Vergabe, Mitwirkung bei der Vergabe, Objektüberwachung

Gehört auch zur Kategorie:

Gewerbe