Zur Übersicht
Gewerbe

Wohn- und Geschäftshaus - Neubau einer Bürolandschaft auf dem Dach in der Schwetzingerstadt von Mannheim

| Gewerbe

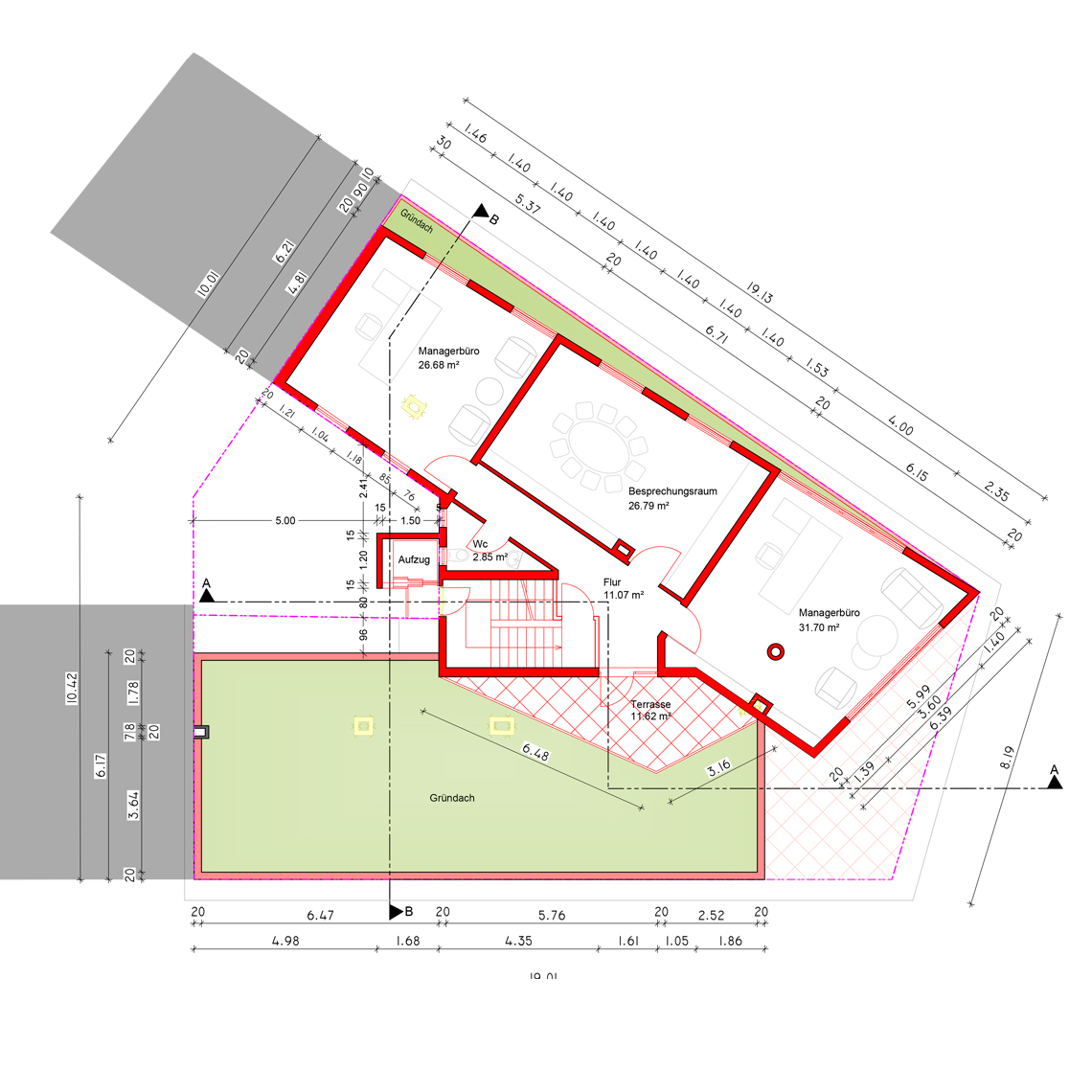
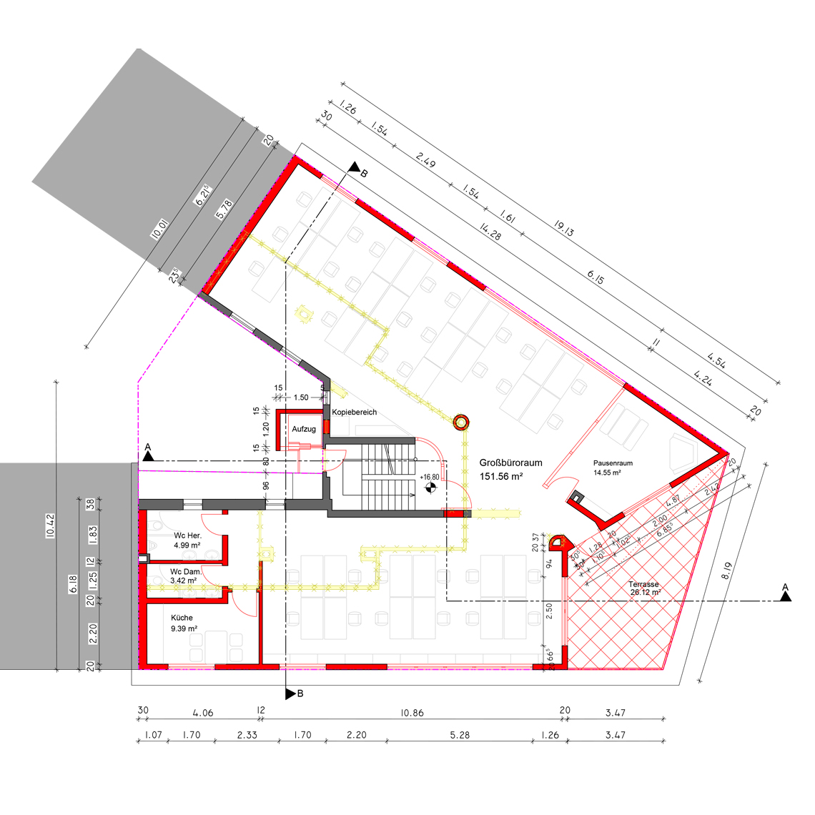
Das Wohn- und Geschäftshaus steht präsent als Eckgebäude an einer Straßenkreuzung bzw. Straßengabelung. Für den daraus resultierenden V-förmigen Gebäudegrundriss mit Wohnungen in den Obergeschossen und Gastronomie im Erdgeschoss wurden zunächst neue Aufteilungspläne erstellt, eingereicht und genehmigt.

Der Bauherr plant ein neues Dachgeschoss mit Büros in zwei Ebenen mit zwei Managerbüros und großem Besprechungsraum im zweiten Dachgeschoss mit großzügigem Gründach. Das Dachgeschoss soll über einen Außenaufzug erschlossen werden. Es entsteht eine moderne Bürolandschaft über den Dächern der Schwetzingerstadt. Naumer Architekten haben die Entwurfsplanung und Genehmigungsplanung erstellt und erfolgreich eingereicht.

Standort Seckenheimer Straße 20, Mannheim-Schwetzingerstadt
Auftraggeber Tecta Real Estate Project GmbH
Jahr 2025
Leistungsphasen Grundlagenermittlung, Vorplanung, Entwurfsplanung, Genehmigungsplanung