Zur Übersicht
Denkmal

Wohnhaus aus dem Jahre 1875 - Kernsanierung unter Auflagen des Denkmalschutzes

| Denkmal Wohnen

In der ruhigen und familienfreundlichen Gegend in Mannheim Seckenheim befindet sich das stark renovierungsbedürftige historische Zweifamilienhaus. Das Architekturbüro Naumer Architekten wurde von der Optimum Sanierungs+Bau GmbH angefragt aus dem Gebäude eine hochwertige Immobilie als dreistöckiges Einfamilienhaus mit historischem Weinkeller zu entwickeln. Entstanden sind im Entwurf 135 Quadratmeter Wohnfläche mit insgesamt 5 Zimmern.

Geplant wurde eine Kernsanierung und Umstrukturierung der inneren Raumaufteilung zu einem modernen Wohnkonzept mit offenem Küchen-, Wohn- und Essbereich, einem Masterbedroom mit Ankleidezimmer, einem Kinderzimmer, einer Vergrößerung des Bades sowie ein großzügiges Dachstudio. Für die Fassade wurden mehrere Varianten entwickelt mit größeren Fensterbändern, die in enger Abstimmung mit der Denkmalpflege zu einem guten Kompromiss geführt wurden.   

Visualisierung der Straßenansicht, Entwurfsvariante
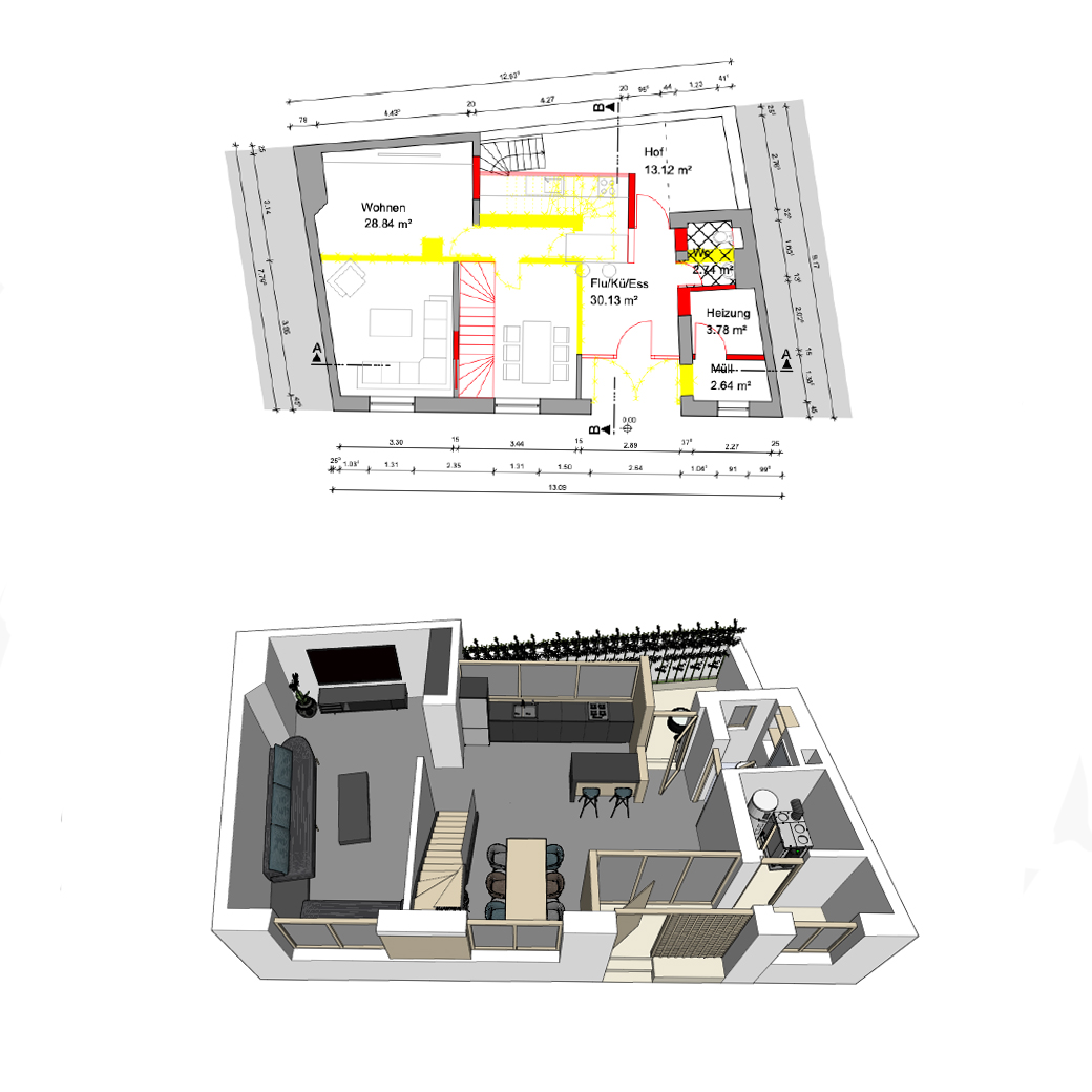
Grundriss Erdgeschoss und 3D-Grundriss, Entwurfsstand
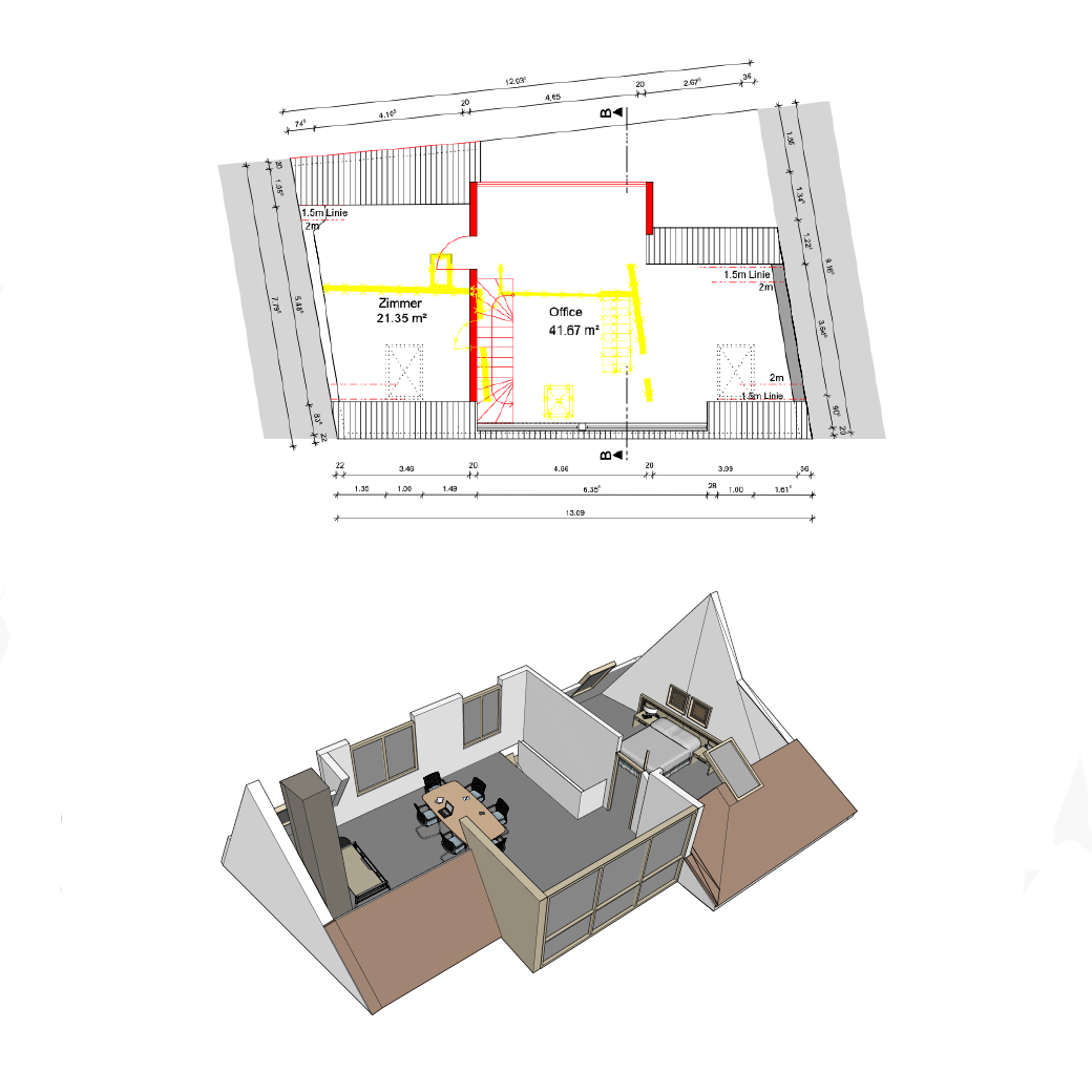
Grundriss Obergeschoss und 3D-Grundriss, Entwurfsstand
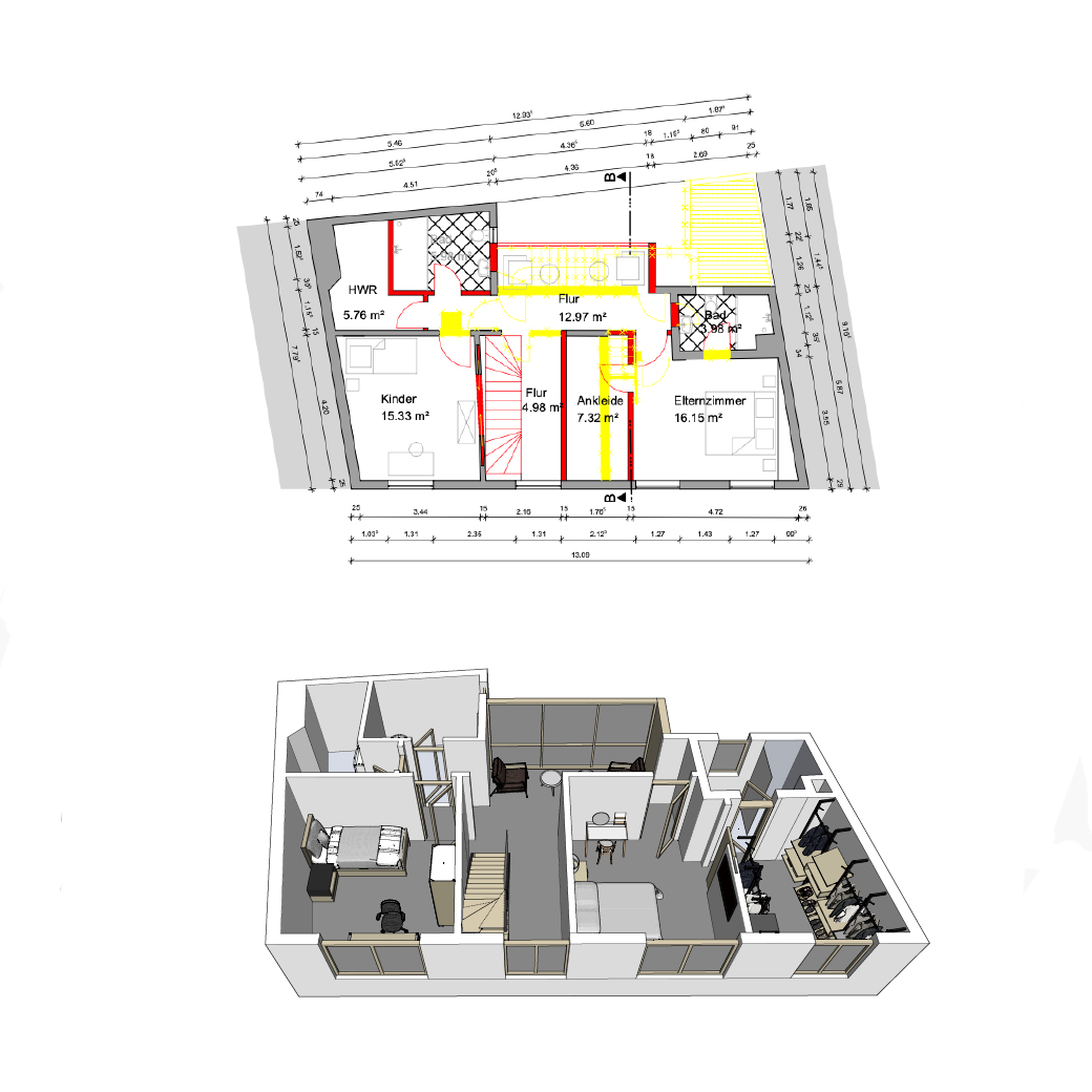
Grundriss Dachgeschoss und 3D-Grundriss, Entwurfsstand
Bestandsansicht 2023
Standort Breisacher Straße, Mannheim-Seckenheim
Auftraggeber Optimum Sanierungs+Bau GmbH
Jahr Planung 2023-2024, Umsetzung 2025
Leistungsphasen Grundlagenermittlung, Vorplanung, Entwurfsplanung, Genehmigungsplanung, Ausführungsplanung, Vorbereitung der Vergabe, Mitwirkung bei der Vergabe, besondere Leistungen: denkmalschutzrechtliche Abstimmung, 3D-Visualisierung

Gehört auch zur Kategorie:

Wohnen