Zur Übersicht
Schulen

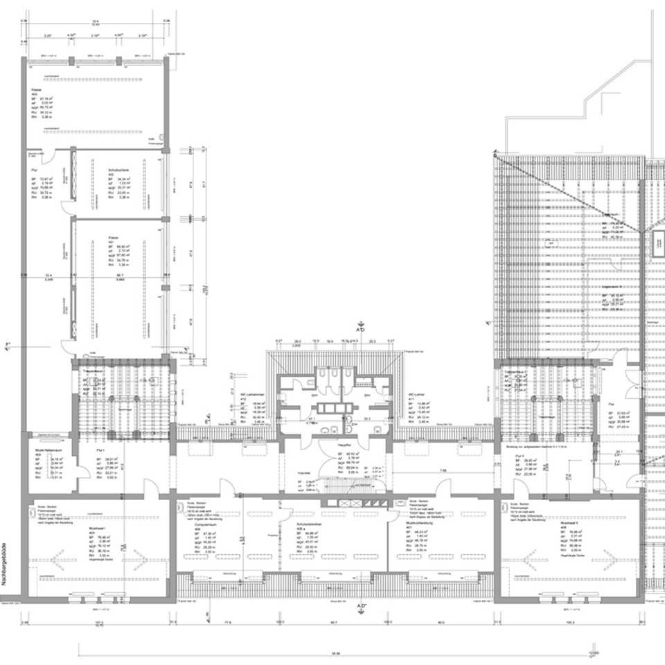
Elisabeth-Gymnasium in Mannheim D6, 12 - Sanierung

Seit 2010 begleitet das Büro Naumer verschiedene Baumaßnahmen: die Instandhaltung der Fassade und des Dachs; die Modernisierung der Klassen- und Fachräume; die Umbaumaßnahmen der Klassen- und Fachräume. Dies erfolgte im Auftrag der Stadt Mannheim und während dem laufenden Betrieb der Schule.

Das zweizügige Elisabeth-Gymnasium, erbaut 1905 vom Stadtbaumeister Richard Perrey, befindet sich mitten in den Quadraten Mannheims und wurde über viele Jahre mehrmals modernisiert und vor allem in den 70er Jahren um einen 5-geschossigen Seitenflügel und eine Turnhalle erweitert.

Das Bestandsgebäude wurde aufgrund moderner Erfordernisse an Brandschutz und Barrierefreiheit ausgebaut.

Maßnahmen, die während der Sanierung der Schäden und der Neuorganisation der Raumbezüge des denkmalgeschützten Hauptgebäudes und des Anbaus aus den 70er Jahre, vom Architekturbüro Naumer Architekten durchgeführt worden sind: die Dachsanierung; die Modernisierung und Sanierung der Fenster; die Umplanung der Fachräume im 4.Obergeschoss (Musik, Kunst etc.); die Umnutzung und Umbauarbeiten der historischen Hausmeisterwohnung in einen Sanitätsraum, einen Sozialarbeiterraum und eine Werkstatt für den Schulbetrieb; die Betonsanierung und Betoninstandsetzung des Seitenflügel-Anbaus; die Sanierung des Anbaus und der Turnhallen. Für die Turnhallen wurde das Tragwerk ertüchtigt sowie Dach und Fassade saniert.

Standort D6, 12, Mannheim-Innenstadt
Auftraggeber FB40 der Stadt Mannheim
Baujahr 2011-2018
Leistungsphasen Grundlagenermittlung, Vorplanung, Entwurfsplanung, Ausführungsplanung, Vorbereitung der Vergabe, Mitwirkung bei der Vergabe, Bauüberwachung
Standort D6, 12, Mannheim-Innenstadt
Auftraggeber FB40 der Stadt Mannheim
Baujahr 2011-2018
Leistungsphasen Grundlagenermittlung, Vorplanung, Entwurfsplanung, Ausführungsplanung, Vorbereitung der Vergabe, Mitwirkung bei der Vergabe, Bauüberwachung
Standort D6, 12, Mannheim-Innenstadt
Auftraggeber FB40 der Stadt Mannheim
Baujahr 2011-2018
Leistungsphasen Grundlagenermittlung, Vorplanung, Entwurfsplanung, Ausführungsplanung, Vorbereitung der Vergabe, Mitwirkung bei der Vergabe, Bauüberwachung

Gehört auch zur Kategorie:

Öffentlich Denkmal